Продам помещение свободного назначения 225.1 м.кв.

на карте
Просмотров 7
33 945 080 руб.
на 3% дешевле похожих объектов ?
Владивосток , Борисенко улица, д.48к1
Отдел продаж
Показать телефон
Данные актуальны на 13.02.2026
Пожаловаться на объявление
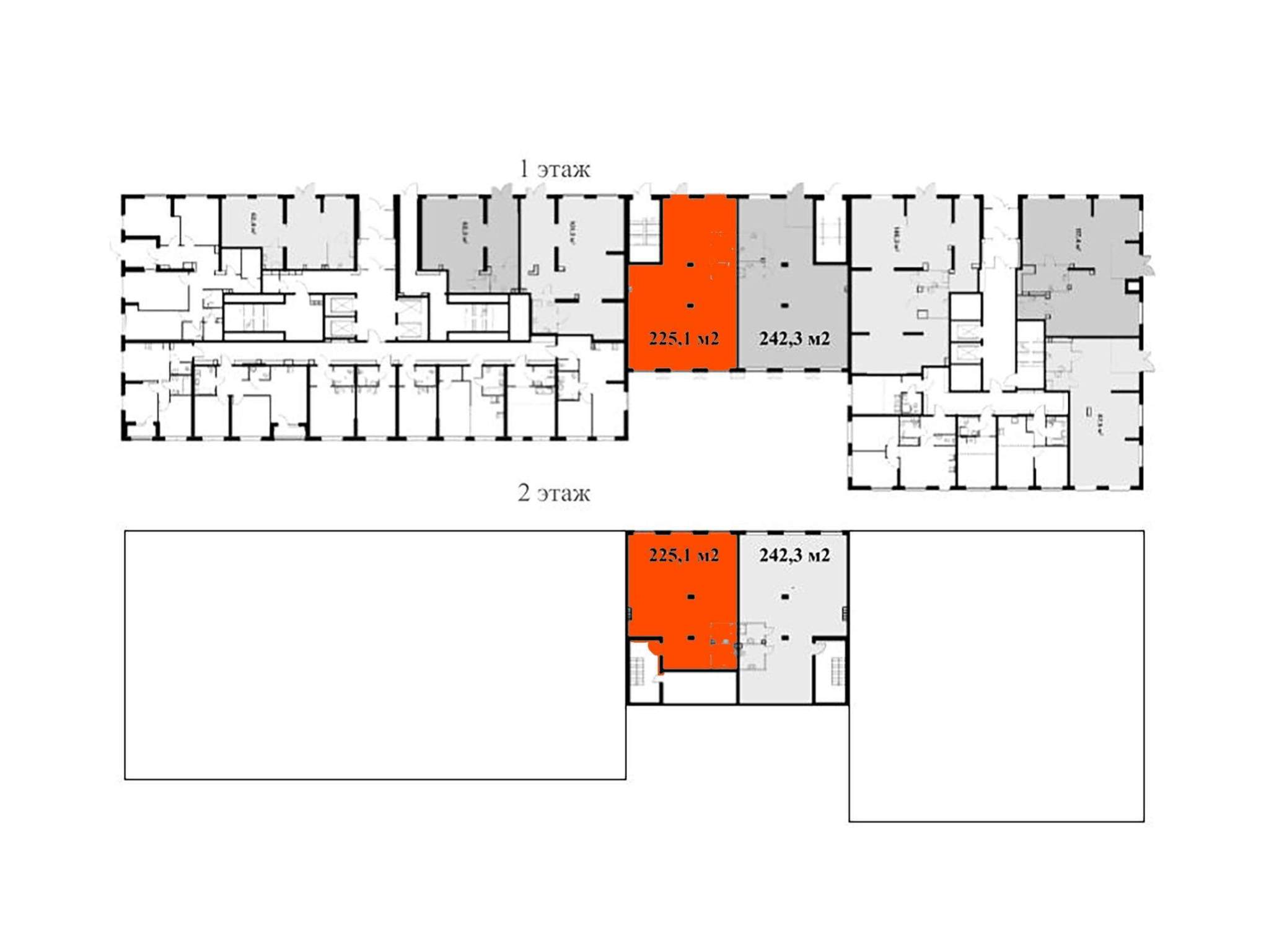
Продаётся нежилое помещение свободного назначения в новом жилом районе Борисенко 48 от ПИК. Открытая планировка, витринное остекление, удобный вход на уровне земли. Помещение (номер на площадке: №6) расположено по адресу: Россия, Приморский край, городской округ Владивостокский, г. Владивосток, ул. Борисенко, в районе д. 48, корпуса 1,2, 3,4. Ввод в эксплуатацию 4 квартал 2026. Продажа напрямую от застройщика. Преимущества помещения: - Высокий трафик и проходимость - Безбарьерная среда: никаких лишних порогов, лестниц и крутых пандусов - Отдельный вход - Витринное остекление - Высокие потолки - Универсальное помещение, мы не ограничиваем вас в выборе типа деятельности: помещения одинаково хорошо подойдут под салон красоты, химчистку или уютное кафе - Открытая планировка и возможность объединения помещений - Быстрая окупаемость бизнеса, обеспечена большим количеством жителей «Борисенко 48» - небольшой квартал в Первомайском районе, в 15 минутах пути на автомобиле от центра Владивостока. С верхних этажей откроется живописный вид на город и сопки. В проекте всего четыре дома и подземный паркинг, в который можно будет спуститься на лифте. Высота домов от 17 до 30 этажей - благодаря переменной этажности солнце будет лучше освещать двор и квартиры. В «Борисенко 48» много разных планировок, и каждая продумана так, чтобы вы могли максимально эффективно использовать жилую площадь. Отделку можно выбрать - готовую или предчистовую. На первых этажах откроются пекарни, кафе, магазины и другие сервисы - это удобно, когда внезапно закончится хлеб или захочется побаловать себя горячим кофе. Из каждого дома будет выход в уютный двор-парк - это закрытая территория для отдыха, где растут цветы и деревья, оборудованы детские и спортивные площадки. Рядом с «Борисенко 48» появится также детский сад для 150 малышей. В пешей доступности есть всё необходимое для комфортной жизни: школы, детские сады, поликлиника и магазины. До крупных торговых центров «Калина Молл» и «Луговая», а также супермаркета «Реми» - всего 5 минут на машине. А до озера на Сафонова, которое отлично подходит для прогулок и отдыха, можно дойти пешком за 9 минут. Живописная Леопардовая набережная - в 10 минутах на автомобиле. Из квартала можно будет выехать как на улицу Борисенко, так и на улицу Сафонова.

Дополнительная информация

Тип здания Отдельное здание Этаж 2 Этажность 17 Количество комнат - Вход Отдельный Ремонт -
Интернет - Кондиционер - Вентиляция - Пожарная сигнализация - Красная линия -
Динамика изменения цен на рынке недвижимости ?

За последние полгода средняя сумма за кв.м. выросла на 55024 руб. Колебание цен происходило от 104374 руб. до 159398 руб. На текущий момент наблюдается тенденция к росту цены.
Похожие объявления
Обновлено
13.02.2026
Фотографии
7
Объявление 734093
Владивосток, Борисенко улица, д.48к1
35 763 480
руб. Продажа
242.3 м2
Вход в личный кабинет